|
月
々
返
済 |
\150,894 |
|
| 自己資金 0 % 金利 1.075 %(優遇金利適用時) 35 年ローンで計算しています。 現行金利 2.475 %から優遇適用した場合の計算例です。 金利は変更される場合があり、優遇適用されない場合があります。 |
| 物件名 |
クレアスタウン高槻市川西町3丁目 |
| 所在地 |
高槻市川西町3丁目 |
| 価格 |
5,280万円 |
消費税 |
|
| 種目 |
新築戸建 |
現況 |
空家 |
| 引渡時期 |
相談 |
引渡年月 |
|
| 交通 |
JR東海道本線 高槻駅 徒歩23分
阪急京都本線 高槻市駅 徒歩29分 |
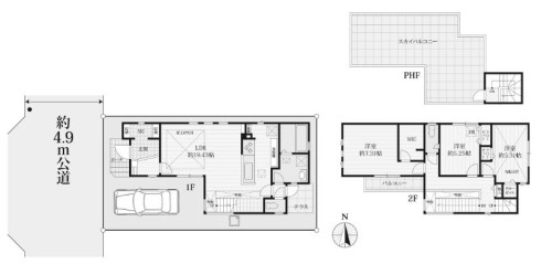
| 間取り |
3LDK |
バルコニー
方向 |
西 |
| 建物面積 |
99.58m2 |
土地(実測) |
|
| 建物面積内訳 |
1F:47.71m2 2F:47.73m2 |
| 私道面積 |
|
土地(公簿) |
91.02m2 |
| 駐車場 |
有 |
築年月 |
令和6年3月 |
| 土地権利 |
所有権 |
地勢 |
|
| 建ぺい率 |
60% |
容積率 |
200% |
| 接道状況 |
一方 |
国土法届出 |
|
| 接道方向 |
西側 |
接道幅員 |
4.9m |
| 接道方向 |
|
接道幅員 |
|
| 接道内容 |
|
| 構造 |
木造 |
| 間取備考 |
|
| 地目 |
宅地
|
| 用途地域 |
第一種中高層住居専用地域
|
| 都市計画 |
市街化
|
| 他制限 |
|
| 建築条件 |
|
| 学校 |
津之江小学校 川西中学校 |
 |
 |
| 電気/都市ガス/上水道/下水道/給湯/システムキッチン/カウンターキッチン/WCL |
 |
 |
PHF(スカイバルコニー)床面積4.14? ホームアシスタントサービス(24時間365日) フラット35S(Aプラン) |
情報更新:2025-11-08 15:13:34
取引態様 仲介 |
|