| 2025年11月リノベーション♪ |
2026年1月駐車場空有♪ |
|
|
|
月
々
返
済 |
\142,607 |
|
| 自己資金 0 % 金利 1.075 %(優遇金利適用時) 35 年ローンで計算しています。 現行金利 2.475 %から優遇適用した場合の計算例です。 金利は変更される場合があり、優遇適用されない場合があります。 |
| 物件名 |
--- |
| 所在地 |
高槻市殿町 |
| 価格 |
4,990万円 |
消費税 |
|
| 種目 |
中古マンション |
現況 |
空家 |
| 引渡時期 |
即時 |
引渡年月 |
|
| 交通 |
JR東海道本線 高槻駅 徒歩12分
|
| 間取り |
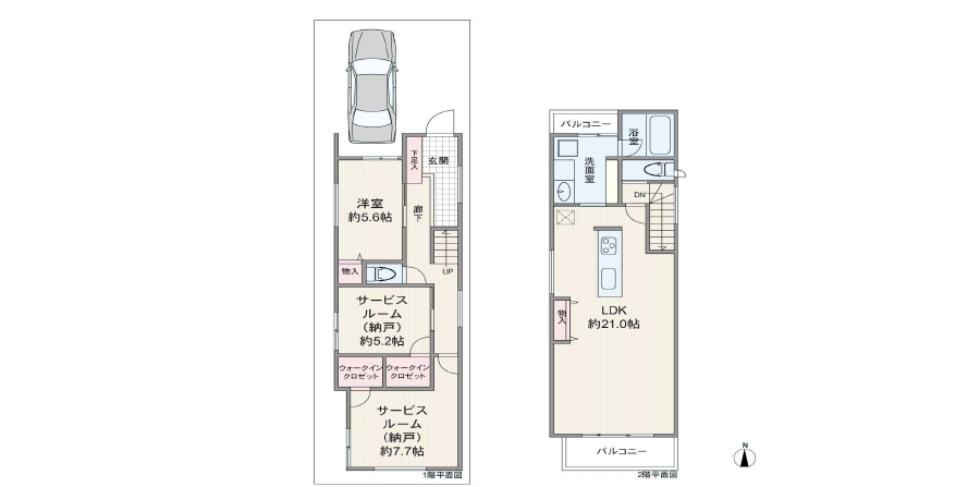
2LDK |
所在階 |
2階 |
| 専有(壁芯) |
70.34m2 |
専有(内法) |
|
| バルコニー |
11.32m2 |
バルコニー方向 |
西 |
| 管理費 |
14,890円 |
修繕積立金 |
17,300円 |
| 築年月 |
平成13年5月 |
駐車場 |
空有 |
| 土地権利 |
所有権 |
総戸数 |
58戸 |
| 土地面積 |
|
土地持分 |
|
| 駐車費用 |
|
| 構造 |
RC造 地上7階 |
| 間取備考 |
|
| 施主 |
株式会社大京 |
| 管理組合 |
有 全部委託 日勤 |
| 施工会社 |
南海辰村建設株式会社 |
| 管理会社 |
株式会社大京アステージ |
| 地目 |
|
| 用途地域 |
第一種住居地域
|
| 都市計画 |
|
| 他制限 |
|
| 建築条件 |
|
| 学校 |
芥川小学校 第二中学校 |
 |
 |
| 電気/都市ガス/上水道/下水道/給湯/システムキッチン/追焚機能付/浴室乾燥機/エレベーター/宅配ボックス/床暖房/オートロック/モニターフォン |
情報更新:2026-01-31 17:41:04
取引態様 仲介 |
|