|
月
々
返
済 |
\88,307 |
|
| 自己資金 0 % 金利 1.075 %(優遇金利適用時) 35 年ローンで計算しています。 現行金利 2.475 %から優遇適用した場合の計算例です。 金利は変更される場合があり、優遇適用されない場合があります。 |
| 物件名 |
|
| 所在地 |
高槻市安岡寺町5丁目 |
| 価格 |
3,090万円 |
消費税 |
|
| 種目 |
中古戸建 |
現況 |
空家 |
| 引渡時期 |
即時 |
引渡年月 |
|
| 交通 |
JR東海道本線 高槻駅 バス乗車16分 バス停 松が丘 停歩7分
|
| 間取り |
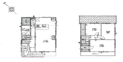
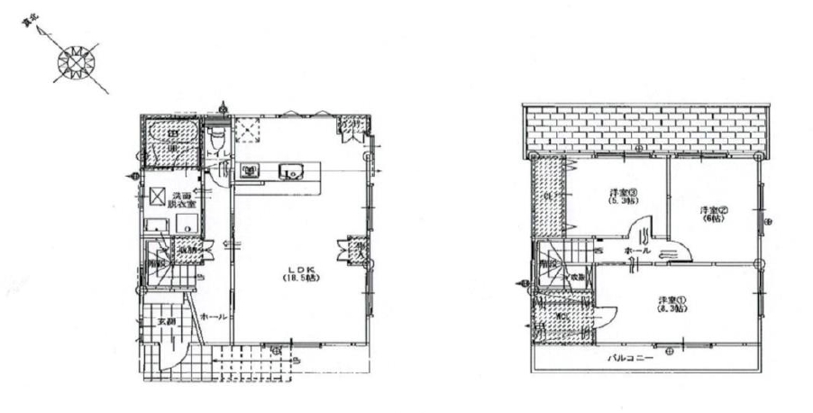
3LDK |
バルコニー
方向 |
南西 |
| 建物面積 |
96.05m2 |
土地(実測) |
|
| 建物面積内訳 |
1F:52.79m2 2F:43.26m2 |
| 私道面積 |
|
土地(公簿) |
128.13m2 |
| 駐車場 |
有 |
築年月 |
令和4年7月 |
| 土地権利 |
所有権 |
地勢 |
|
| 建ぺい率 |
50% |
容積率 |
100% |
| 接道状況 |
一方 |
国土法届出 |
否 |
| 接道方向 |
南西側 |
接道幅員 |
6.3m |
| 接道方向 |
|
接道幅員 |
|
| 接道内容 |
約8.97m接面 |
| 構造 |
木造 |
| 間取備考 |
|
| 地目 |
宅地
|
| 用途地域 |
第一種低層住居専用地域
|
| 都市計画 |
市街化
|
| 他制限 |
高度
|
| 建築条件 |
|
| 学校 |
|
 |
 |
| 電気/都市ガス/上水道/下水道 |
情報更新:2026-02-22 15:00:47
取引態様 仲介 |
|